The Featherworks, Boston
- Contemporary three-storey townhouse with striking timber-clad exterior
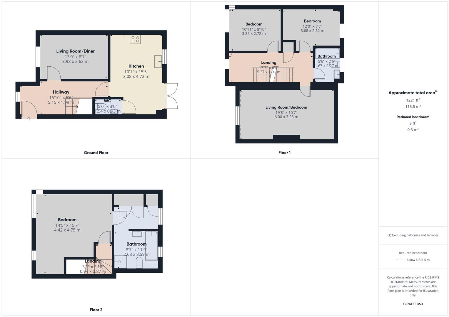
- Approx. 1,221 sq. ft. (113.5 m ) of living space
- Ground floor WC for added convenience
- First floor with two bedrooms, family bathroom, and a large multipurpose living room/bedroom
- Second floor master suite with a generous double bedroom and a spacious bathroom
- Versatile layout, ideal for home working or multi-generational living
- Large feature windows flooding the interior with natural light
- Driveway parking and cul-de-sac location
- Close to local shops, schools, and excellent transport links
- Great family home
This well-maintained property offers a modern and spacious living environment. The ground floor boasts a lovely hallway with access to the dining room and kitchen, Bedroom 4 / Office and stairs to the first floor. The kitchen is seamlessly connected to the rear garden that is equipped with lovely patio. The first floor boasts two well proportioned bedrooms, a living room and family bathroom. The living room is very spacious, perfect for relaxing. On the third floor of the property, there is one very spacious double room with its own hallway area and large bathroom. The bathroom is equipped with both a bath and also a shower. The bedroom is bright, with large windows letting the sunlight through.





